Rif.W18 – BORGO VILLA BENIA Rapallo
Descrizione
TORNA ALLA PRESENTAZIONE
APPARTAMENTO INTERNO 18
L’unità immobiliare n. 18 fa parte del Corpo D del complesso immobiliare insieme agli appartamenti n. 15 e 16. Come tutte le altre unità del complesso, l’accesso è possibile tramite entrambe le scalinate situate in corrispondenza degli ingressi principali o tramite l’ascensore. Quest’ultimo, con partenza dalla stada carrabile, dove si trovano i parcheggi della struttura, conduce alla “Piazza”, una terrazza condominiale adibita a spazio di aggregazione, che funge anche da punto di diramazione per i vari percorsi che conducono agli appartamenti.
DIMENSIONI
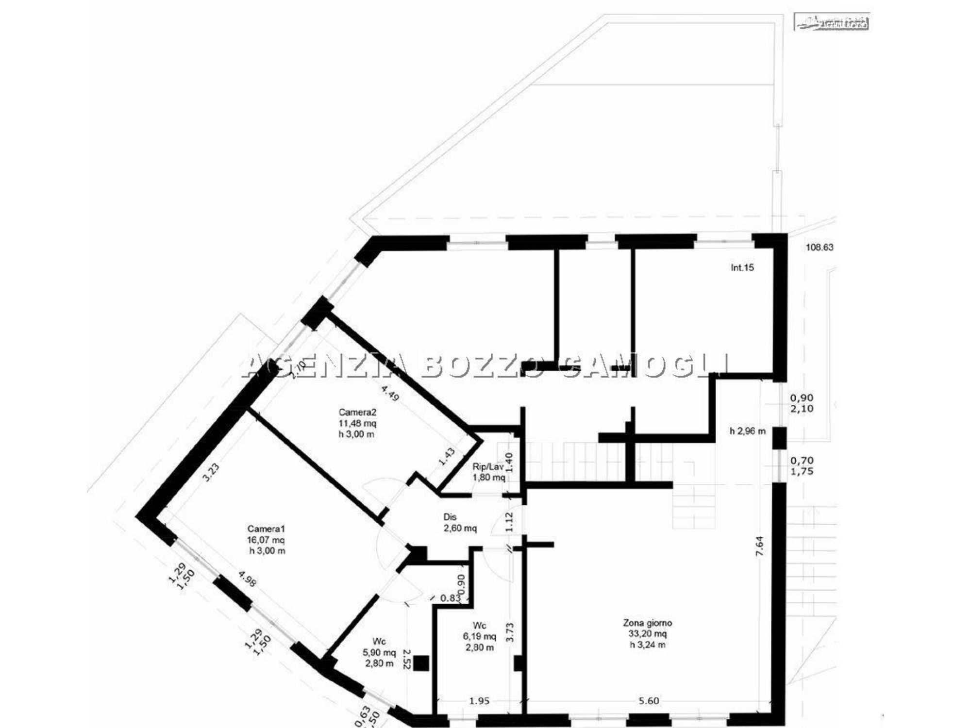
Superficie commerciale appartamento mq. 96,52.
Superficie commerciale al lordo dei muri perimetrali mq. 106,34 c.
Superficie del terrazzo di pertinenza mq. 146,47 c.
Ogni appartamento dispone di un proprio posto auto pertinenziale.
PREZZO € 460.000.
INTERNI
Questo appartamento si apre su un accogliente ingresso che introduce ad un luminoso soggiorno, un ambiente armonioso dove la luce naturale inonda ogni angolo. La zona giorno, che include una cucina a vista e un’area pranzo, è impreziosita da due grandi finestre che offrono una vista incantevole sulle verdi colline circostanti e sulla pittoresca Chiesa Millenaria di Camogli, creando un’atmosfera unica e suggestiva.
Un elemento distintivo di questo spazio è la scala in legno che non solo svolge una funzione pratica, ma diventa un vero e proprio oggetto d’arredo, collegando l’ambiente al piano superiore e conducendo alla terrazza panoramica di uso esclusivo della proprietà. La porta finestra che dà accesso alla terrazza incornicia, come un quadro, la vista sulla romantica Chiesa di San Martino, un angolo di quiete che regala un’impareggiabile sensazione di serenità.
Un ampio disimpegno conduce alla zona notte, composta da due camere da letto, di cui una dotata di bagno en-suite.
Un grande bagno finestrato e un pratico ripostiglio/lavanderia completano l’area privata della casa, rispondendo ad ogni esigenza di comfort e funzionalità.
L’esposizione su tre lati consente una perfetta ventilazione naturale anche nei mesi più caldi, garantendo un clima interno sempre piacevole e confortevole. Ogni dettaglio di questa residenza è pensato per offrire un’esperienza di vita esclusiva e raffinata in un contesto di rara bellezza.
ESTERNI
L’accesso all’appartamento avviene attraverso un ballatoio che si snoda nel cuore del Borgo, offrendo sin da subito una vista panoramica sulla verdeggiante vallata antistante e sul pittoresco bosco che si erge sullo sfondo. Il portoncino blindato si apre direttamente sulla zona giorno, dove una raffinata scala in legno collega gli interni alla spaziosa terrazza a tetto, anch’essa di proprietà esclusiva. Questo elegante volume in uscita si apre al panorama esterno, regalando uno spettacolo incantevole che abbraccia il cielo, il bosco circostante e gli antichi uliveti circostanti.
La terrazza, situata nel punto più alto dell’intero complesso, si distingue per le sue ampie dimensioni e per la straordinaria vista panoramica a 360° che spazia su tutta la bellezza naturale che circonda la proprietà. Qui, uno spazio dedicato agli impianti per una cucina esterna rende l’area perfetta per cene e pranzi all’aperto, immersi nella tranquillità della natura. L’orientamento ideale e la generosa metratura della terrazza consentono di sfruttarla in modo versatile, creando ambienti funzionali per ogni esigenza. Oltre ad una zona pranzo, si può facilmente immaginare l’inserimento di un angolo relax con salottino, un angolo prendisole e perfino la realizzazione di un piccolo orto, tutto incorniciato dalla bellezza naturale che rende unico questo angolo di paradiso.
Con questa terrazza, ogni momento della giornata si trasforma in un’esperienza unica e irripetibile, a contatto diretto con la natura ed il paesaggio circostante.
INTERVENTO DI RIQUALIFICAZIONE ENERGETICA
L’edificio è stato ottimizzato dal punto di vista della prestazione energetica attraverso una serie di interventi qui riportati e che derivano dal progetto energetico (ex Legge 10) effettuato dallo studio dell’ing Gian Ettore Borzone di Chiavari:
– il solaio di copertura dell’interno 18 costituisce lastrico solare per le unità sottostanti (interni 15 e 16); come nel caso
di tutti gli altri lastrici solari del complesso immobiliare anche questo è stato coibentato con pannelli ISHOLpur MB da 120 mm lambda = 0,025 W/(mk) e Resistenza termica Ro 5,60 mq K/W come previsto dalla ex Legge 10 e che rientra tra quelle ammissibili agli incentivi di legge;
– la parete esterna a nord-ovest è stata coibentata con cappotto realizzato mediante utilizzo di pannelli isolanti in polistirene espanso sinterizzato ISHOLeps GRA 100 E (EPS) grigio additivato con grafite dello spessore di cm 6 (Lambda 0,031 W/(mk) a cui corrisponde Resistenza termica Ro 1.90 mqK/W) posto in opera con idoneo collante, appositi tasselli ed idonea rasatura armata secondo la normale procedura a regola d’arte;
– tutti i serramenti sono stati sostituiti con nuovi serramenti in alluminio a taglio termico e muniti di vetrocamera (Certificazione e Dichiarazione Enea):
– l’impianto di riscaldamento previsto e calcolato dal progetto energetico è costituito da una caldaia a condensazione della Ditta BAXI Modello LUNA AIR 28 Mod. A7736262 da 28 kw e da radiatori in tubolare di acciaio al carbonio elettrouniti ø 25 mm della Ditta Cordivari modello Ardesia verniciati a polveri epossipoliestere ecologiche (DIN 55900-1-2, attivato da comando remoto; ogni radiatore è dimensionato per rispettare la potenza richiesta dal progetto (ex Legge 10) citato;
– l’appartamento, così come tutte le unità immobiliari del complesso, ha la predisposizione di un impianto di aria condizionata (del tipo aria-aria) che prevede una unità esterna e tre unità interne (una per il soggiorno e una per ciascuna camera); tutte le cassette predisposte interne sono collegate tramite apposito sifone allo scarico fognario per l’eliminazione della condensa;
– l’appartamento è dotato di un impianto VMC (ventilazione meccanica controllata) UVC 15 HS BV 3E Zinc LC in classe A con recuperatore di calore ad alta efficienza (circa 90%); il VMC preleva l’aria viziata dai bagni, effettua lo scambio termico all’interno della macchina e viene espulsa all’esterno; parallelamente l’aria fresca prelevata in esterno recupera il calore dall’aria viziata e viene immessa nel soggiorno e nelle camere; un comando remoto consente di selezionare le varie modalità di funzionamento.
Gli interventi così effettuati hanno portato l’Unità Abitativa alla classe energetica E come da attestato di prestazione energetica redatto dall’arch. Giovanna Cristalli.
ELENCO FORNITURE
– La pavimentazione utilizzata è in grès porcellanato Serie Stones Basel Negro formato 60x60R.
– I rivestimenti del bagno sono in grès porcellanato della Ditta Roca Serie Limestone 60×120 cm.
– Gli zoccolini sono in mdf pitturati in tinta con le pareti.
– I piatti doccia sono della Ditta Krea in resina poliestere con finitura satinata Modello Ardesia.
– I sanitari utilizzati sono sospesi della Ditta Geberit modello Selnova Premium.
– La rubinetteria utilizzata è della Ditta Paffoni serie Stick.
– Il box doccia è della ditta Novellini serie Lunes 2.0.
– Le porte interne sono a battente telaio Evo con cerniera a scomparsa e maniglie della ditta Ghidini.
– L’impianto elettrico è stato realizzato dalla ditta Ma.Vi. con frutti e placche della Ditta Vimar Serie Plana.
– Tutte le finestre sono dotate di cablaggio predisposto per l’installazione di impianto di allarme.
– Il complesso immobiliare è dotato di antenna per la ricezione televisiva dei segnali del digitale terrestre e satellitare dalla posizione orbitale 13°est HotBird.
– Installazione sistema di distribuzione in fibra ottica secondo la legge 164/2014 eseguito in conformità alla Guida CEI 306-2.
– Tutti gli impianti sono muniti di apposita certificazione a norma resa dall’Installatore.
Indirizzo
-
Paese Italy
-
Province/State Liguria
-
City/Town Rapallo
-
Frazione San Martino di Noceto
Overview
- Riferimento annuncio W18
- Prezzo €460.000
- Tipo Proprietà Appartamento, Complesso residenziale
- Status proprietà VENDITA
- Stanze 6
- Camere da letto 2
- Bagni 2
- Anno di costruzione 2025
- Dimensioni 106 m2
- Label Residenziale

